Подобрать проект

Проект № 12-17

4 2 13x11 м 194 м²

Стоимость проекта от: 93 006₽

57

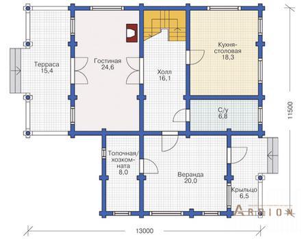
Планы

Фасады

Описание

Общая площадь: 194 м²
Жилая площадь: 95 м²
Спальни: 4
Ванные комнаты: 2
Количество этажей: 2
Размеры дома: 13x11м
Тип кровли: Плоская
Архитектурный стиль: Современный
Дополнительно: мансарда, терраса, балкон

Стоимость строительства от:
10 117 100₽

Стоимость строительства от:
10 117 100₽

Возможно поэтапное строительство

Срок до 4 месяцев

Закладные

Фундамент

Стены

Перекрытие

Кровля

780 ₽/м2
от 33 000 ₽/м2

ПОЛУЧИТЬ СМЕТУ

Срок до 6 месяцев

Коробка дома

Утепление конструкций

Отделка фасадов дома

Водосточная система и софиты

43 000 ₽/м2

ПОЛУЧИТЬ СМЕТУ

Срок до 9 месяцев

Коробка дома

Внешняя отделка

Разводка коммуникаций (электрика, отопление, водоснобжение)

Черновая внутренняя отделка (white box)

АР - Проработка оригинальности фасадного решения

69 000 ₽/м2

ПОЛУЧИТЬ СМЕТУ

Срок ≈ 11 месяцев

Коробка дома

Внешняя отделка

Внутренняя отделка под чистовую

Чистовая внутренняя отделка

75 000 ₽/м2

ПОЛУЧИТЬ СМЕТУ

Пример проектной документации

group-list group-list
Адаптируем проект под любой материал
Мы поможем вам реализовать вашу мечту о прекрасном жилье из любого материала, который вы выберете.
Похожие проекты

Нужна консультация?

Оставьте контакты и мы с вами свяжемся для обсуждения деталей

Arhion
Яндекс.Метрика